Small Footprint, Flexible Living
Hythe Road Townhouse, Brighton
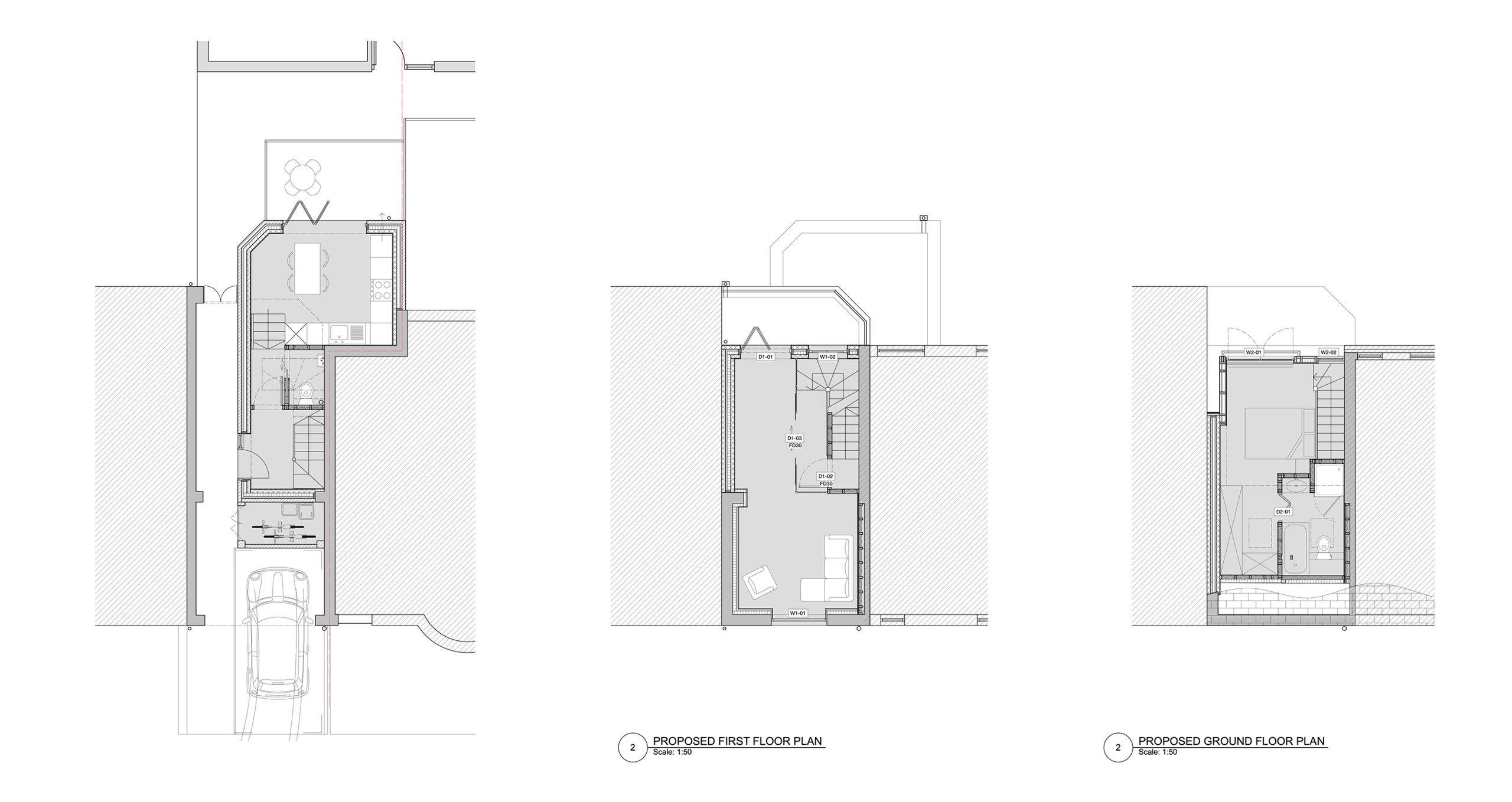
Set within a narrow gap in a terraced street near Preston Park and Fiveways, this 3.4 metre townhouse with an area 66m2, explores how compact urban sites can support adaptable, high quality living.
HAPA Architects developed the detailed design, focusing on spatial efficiency, daylight and flexibility within a constrained footprint.
The plan is organised to maximise usability at every level. The ground floor opens onto a south facing courtyard, extending the kitchen and dining space and drawing light into the depth of the plan. Above, a dual aspect room is divided by Crittall style glazed doors, allowing it to operate either as one larger space or as two separate rooms. This provides flexibility for changing uses over time, including living, working or sleeping.
The top floor is arranged as a bedroom suite, with a large bifold opening framing views across Brighton towards the sea. Throughout the house, simple material choices and integrated joinery support a clear and efficient layout.
Despite its compact form, the house achieves an EPC B rating, demonstrating a considered approach to fabric performance and energy use.
Delivered in collaboration with House of SNAPS, the project reflects a shared focus on well designed, small scale housing. It contributes to a growing interest in compact urban homes that prioritise adaptability, light and long term usability.










