Fairview

Fairview is a new contemporary, low-energy home in Lewes that replaces an existing chalet bungalow which no longer made the most of its remarkable setting overlooking the floodplains of Lewes and Offham.

Designed for a couple whose children have grown up and moved out, the brief was to create a comfortable and sustainable family home that would make full use of the site’s north-east aspect and views, while reusing the existing foundations to reduce environmental impact. The result is a calm, light-filled home that responds sensitively to its landscape.

 

EPC

A Rate / 104A (Outstanding)

Completed

2025

Area

330 m2

Design

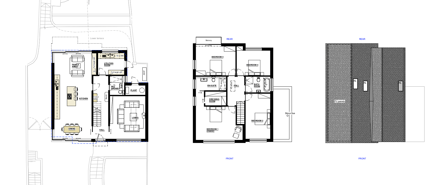
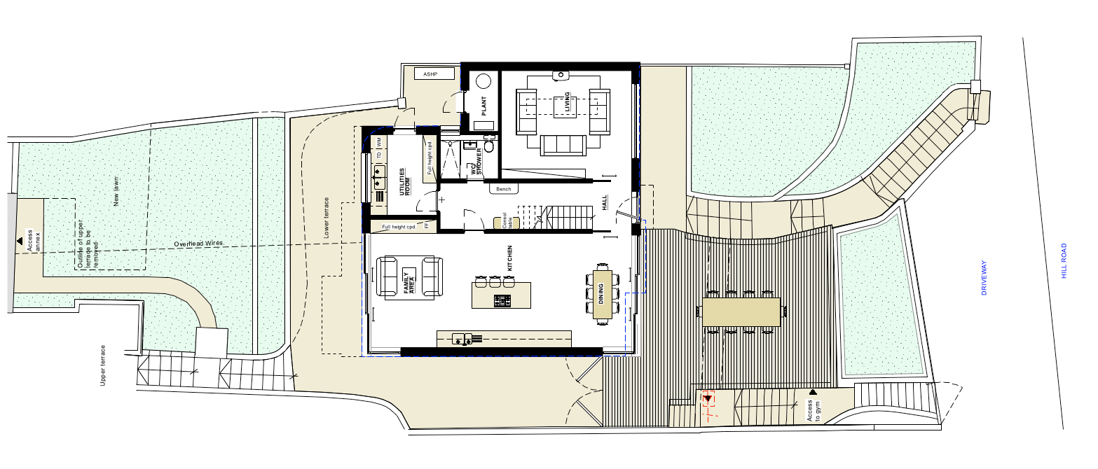
The house is composed of two pitched volumes that overlap and project slightly at the upper level, creating a small cantilever at the front and a large one with a balcony at the back that brings balance and a sense of movement to the form. The layout makes best use of natural light and orientation, opening the living spaces to the landscape and a large terrace that extends from the kitchen over the garage and annex. 

Careful consideration was given to the relationship between inside and out, with large areas of glazing framing views across the floodplains and improving the connection between the home and its surroundings.

Materials and Construction

Fairview combines an off-site fabricated steel frame with timber infill panels, ensuring precision and efficiency during construction. The existing foundations were fully retained and a small section added to the front, reducing waste and disturbance to the site. 

Externally, the house is clad in larch finished with Sioo:x, paired with a natural slate roof. Locally sourced flint defines the ground floor elevation at the entrance, providing texture and permanence. Internally, natural materials create warmth and continuity, with timber floors throughout, a bespoke oak staircase, and handcrafted joinery including a kitchen by Ledbury.

Kitchen Design

The kitchen at Fairview was designed and crafted by Ledbury Studio, whose work brings a refined, bespoke character to the heart of the home. Their ‘Sussex Kitchen’ combines raked and stained oak cabinetry with handleless detailing and aged brass accents, creating a warm yet contemporary space for both everyday living and entertaining. Distinctive features include wild walnut panels, ribbed glazed display cupboards, and a bar area finished in hand-patinated verdigris copper. Durable Dekton Sabbia worktops and carefully considered storage solutions ensure practicality alongside craftsmanship. More details can be found here.

Sustainability and Performance

Fairview places strong emphasis on energy performance and environmental design. The home achieves an EPC rating of A 104A, among the highest levels of domestic efficiency in the UK.

A series of integrated systems work together to minimise energy demand and create a healthy living environment:

  • A 9kWp solar PV array and battery storage system for optimised on-site energy use
  • Air Source Heat Pump (ASHP)
  • Mechanical Ventilation with Heat Recovery (MVHR)
  • Underfloor heating throughout
  • Very low U-values to minimise heat loss
  • Passive solar design to maximise natural light and solar gain

These measures ensure Fairview performs efficiently throughout the year while maintaining comfort and connection to its setting.

Fairview, house, lewes, hapa, solar panels

Outcome

Fairview demonstrates how the careful reuse of existing structures, thoughtful material choices and a fabric-first approach can produce a highly efficient, contemporary home that is both enduring and responsive to place. It is a considered piece of architecture that balances performance, craftsmanship and landscape.

Photos by Oliver Perrott

Kitchen photos by Chris Horwood

Fairview, lewes, architectural plans hapa
Fairview, lewes, architectural plans hapa

Share This Project

HAPA Architects
Privacy Overview

This website uses cookies so that we can provide you with the best user experience possible. Cookie information is stored in your browser and performs functions such as recognising you when you return to our website and helping our team to understand which sections of the website you find most interesting and useful.